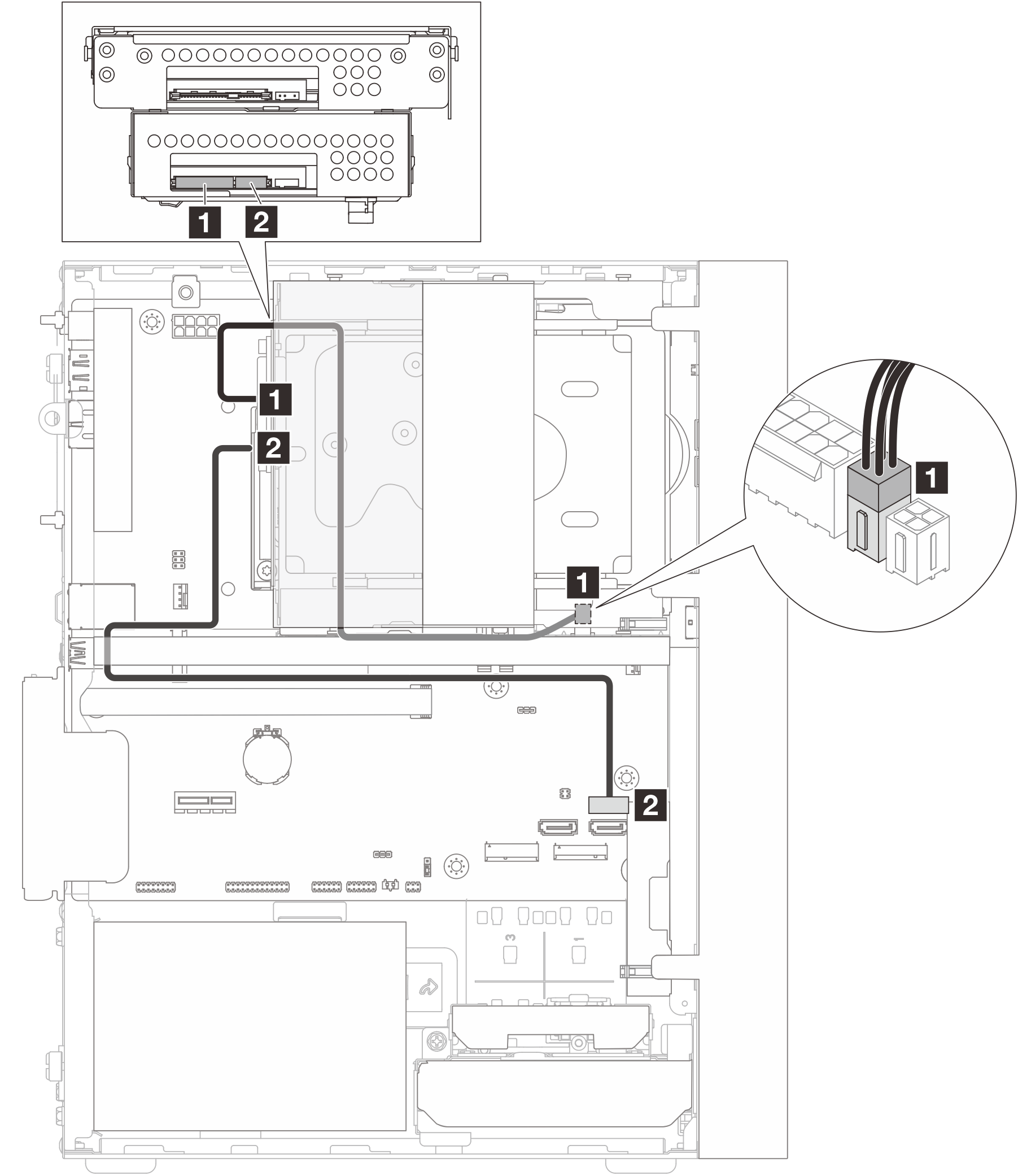
Cable routing for bay 3 drive
Follow the instructions in this section to learn how to do cable routing for the drive in bay 3.
For the system-board connector locations, see System-board connectors.
Figure 1. Cable routing for bay 3 drive


| From (bay 3 drive) | To (system board) | Cable |
|---|---|---|
| 1 Signal connector | 1 SATA 3 connector | 7pin SATA to 7pin RA SATA cable, 185 mm |
| 2 Power connector | 2 SATA power 1 connector | 4pin power cable, 300 mm/80 mm |
Give documentation feedback