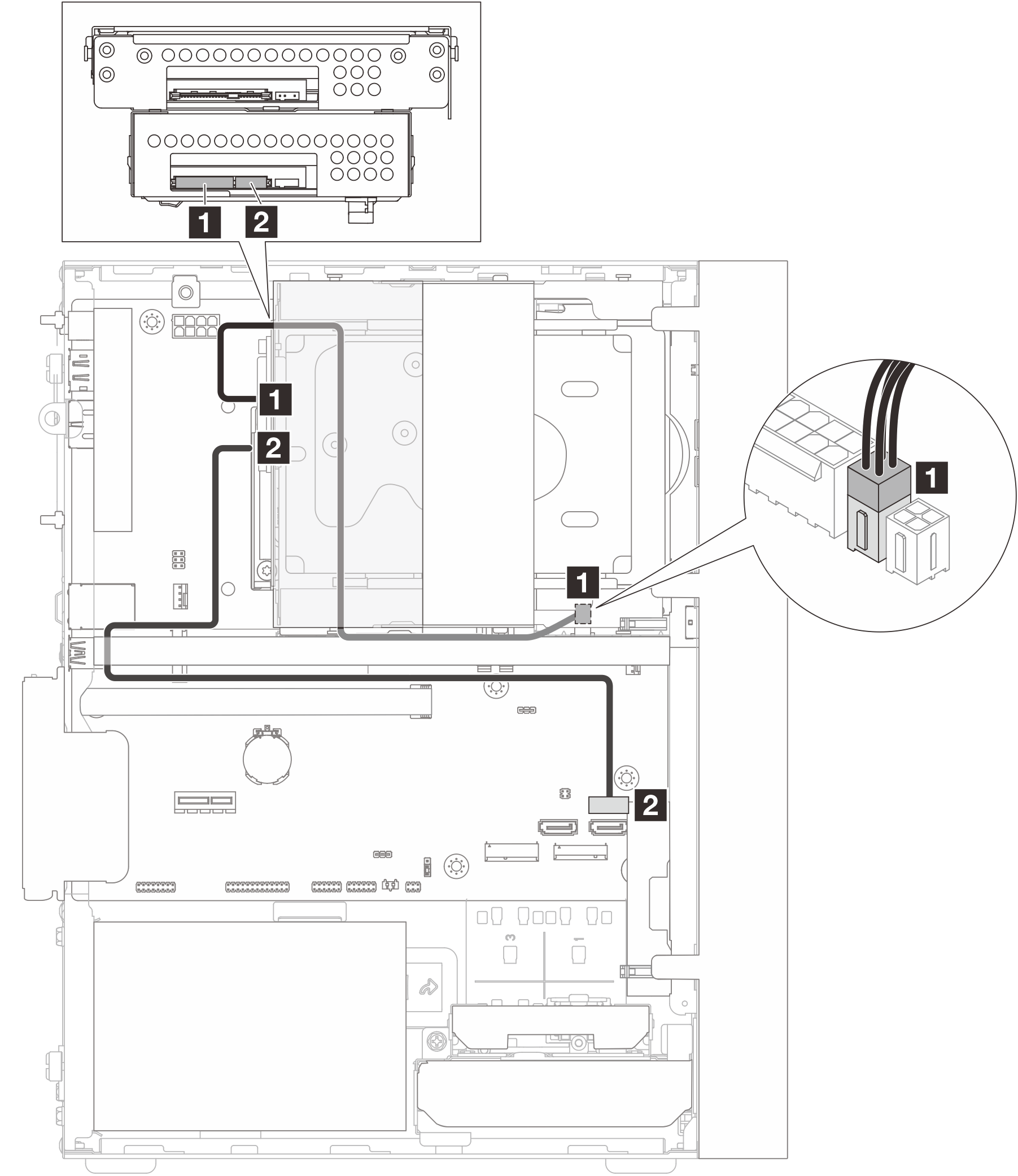
Cheminement des câbles pour l'unité de disque dur de la baie 3
Suivez les instructions de la présente section pour savoir comment procéder au cheminement des câbles pour l’unité dans la baie 3.
Pour connaître les emplacements des connecteurs de la carte mère, voir Connecteurs de la carte mère.
Figure 1. Cheminement des câbles pour l'unité de disque dur de la baie 3


| Depuis (unité de la baie 3) | Vers (carte mère) | Câble |
|---|---|---|
| 1 Connecteur d’interface | 1 Connecteur SATA 3 | 7pin SATA to 7pin RA SATA cable, 185 mm |
| 2 Connecteur d’alimentation | 2 Connecteur d’alimentation SATA 1 | 4pin power cable, 300 mm/80 mm |
Envoyer des commentaires