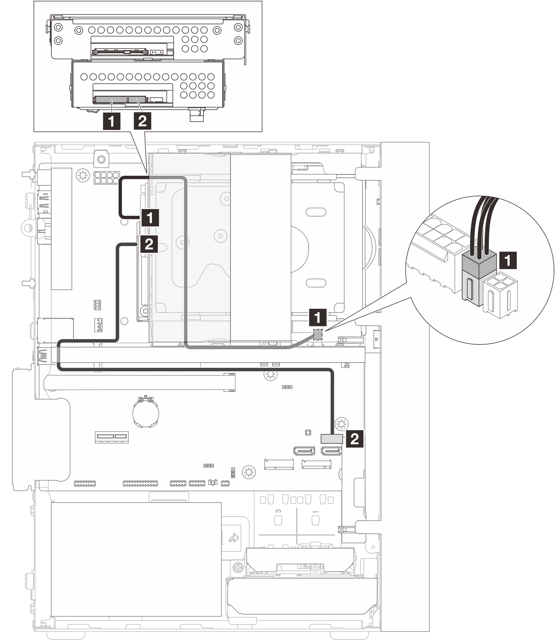
การเดินสายไดรฟ์ช่องใส่ 3
ทำตามคำแนะนำในส่วนนี้เพื่อเรียนรู้วิธีเดินสายสำหรับไดรฟ์ในช่อง 3
สำหรับตำแหน่งของขั้วต่อแผงระบบ โปรดดู ขั้วต่อแผงระบบ
รูปที่ 1. การเดินสายไดรฟ์ช่องใส่ 3


| จาก (ไดรฟ์ช่องใส่ 3) | ไปยัง (แผงระบบ) | สาย |
|---|---|---|
| 1 ขั้วต่อสัญญาณ | 1 ขั้วต่อ SATA 3 | 7pin SATA to 7pin RA SATA cable, 185 mm |
| 2 ขั้วต่อไฟฟ้า | 2 ขั้วต่อไฟฟ้า SATA 1 | 4pin power cable, 300 mm/80 mm |
ส่งคำติชม