Skip to main content

Install the water loop

Use this information to install the water loop to the tray.

About this task

Required tools
  • Screwdriver for PH 1, PH 2, T10, T20, and T30 screws

  • Waterloop Service Kit (SC750 V4) (The water loop carrier in the Service Kit is reusable, it is recommended to keep it at the facility where the server operates for future replacement needs.)

  • Up VR Gap Pad Kit (SC750 V4)

  • MID E3.S TOP Gap Pad (SC750 V4) , if E3.S middle drive is installed.

  • MID E3.S BOT Gap Pad (SC750 V4) , if E3.S middle drive is installed.

  • Storage Gap Pad Kit (SC750 V4) , if E3.S front drive is installed.

  • Storage Gap Pad Kit (SC750 V4) , if E3.S 1T dual front drives or E3.S 2T single front drive are installed.

  • CX7 NDR200 Gap Pad (SC750 V4) , if ConnectX-7 NDR 200 adapter is installed.

  • CX7 Gap Pad (SC750 V4) , if ConnectX-7 NDR 400 adapter is installed.

S038
Use eye protection
CAUTION
Eye protection should be worn for this procedure.
S040
use protective gloves
CAUTION
Protective gloves should be worn for this procedure.
S042
Danger
DANGER
danger
Risk of electric shock due to water or a water solution which is present in this product. Avoid working on or near energized equipment with wet hands or when spilled water is present.
Important
Gap pad replacement guidelines
  • For gap pad location and instruction, see Gap pad identification and location.

  • Before replacing the gap pad, gently clean the surface with an alcohol cleaning pad.

  • Hold the gap pad carefully to avoid deformation. Make sure no screw hole or opening is blocked by the gap pad material.

Attention
  • Read Installation Guidelines and Safety inspection checklist to ensure that you work safely.

  • Turn off the corresponding DWC tray that you are going to perform the task on.

  • Disconnect all external cables from the enclosure.

  • Use extra force to disconnect QSFP cables if they are connected to the solution.

  • To avoid damaging the water loop, always use the water loop carrier when removing, installing or folding the water loop.

  • A torque screwdriver is available for request if you do not have one at hand.

Watch the procedure
  • A video of this procedure is available at YouTube.

Procedure

Attention
Make sure that the retaining clips on all memory module connectors are in the locked position.

  1. Open the package box and remove protective covers from the water loop.
    1. Remove the foam cover from the water loop.
    2. Remove the plastic cover from the water loop.
    Figure 1. Removing protective covers from the water loop

  2. Loosen the six T20 screws from the water loop while the water loop is still in the package box.
    Figure 2. Removing six screws from the water loop in the package box

  3. Clean the thermal grease on processors and water loop processor cold plate.
    1. Gently clean the old thermal grease on processors and the processor cold plate on water loop using an alcohol cleaning pad.
    2. Remove the processor identification label from the water loop and replace it with the new label that comes with the replacement processor. If you are unable to remove the label and place it on the new water loop, or if the label is damaged during transfer, write the processor serial number from the processor identification label on the new water loop in the same location as the label would be placed using a permanent marker.
    3. Apply the thermal grease on the top of the processor with syringe by forming four uniformly spaced dots, while each dot consists of about 0.1 ml of thermal grease
      Note
      Carefully place the processor and retainer on a flat surface with the processor-contact side down.
      Figure 3. Thermal grease application
      Applying thermal grease
  4. Install processor retainers onto processor if needed.
    1. Align the triangular mark on the processor retainer with the triangular mark on the processor corner edge.
    2. Gently place the processor retainer on the processor; then, carefully press the four sides of the processor retainer to secure the processor.
      Figure 4. Installing a processor retainer
      Installing a processor retainer
  5. Install processor to the water loop while the water loop is still in the package box.
    1. Align the triangular marks on the processor retainers with the triangular slots on the underside of the water loop cold plate; then, attach the processors to the underside of the water loop cold plate by inserting the processor retainer posts and clips features into the openings at the four corners of the cold plate.
      Figure 5. Installing processor to the water loop

    2. Rotate all anti-tilt wire bails (8x anti-tilt wire bails per node) outwards to the unlocked position.
      Figure 6. Unlock Torx T30 captive screws

  6. Remove the water loop from the package box. Make sure to hold the touch points marked in grey in the illustration below.
    Attention
    Holding the water loop anywhere other than the touch points may cause damage to it.
    Figure 7. Touching points when removing water loop from package box
    Top imageIsometric view of water loop
    Bottom imageTop view of the water loop


    Attention
    Before installing the water loop to the tray, keep the water loop standing vertically. If the water loop is placed horizontally and touches the working surface, the gap pads may be damaged.
    Figure 8. Handling water loop before installing it to the tray

  7. Check the gap pads on the water loop, if any of them are damaged or detached, replace them with new ones.
    Figure 9. Water loop gap pads locations

Make sure to follow Gap pad replacement guidelines.

  1. Check the gap pads on the VR cold plate installed on the processor board, if any of them are damaged or detached, replace them with new ones.
    Figure 10. VR cold plate gap pads locations

Make sure to follow Gap pad replacement guidelines.

  1. Install the water loop to the right-side node (when viewed from the tray front).
    1. Carefully hold the water loop with both hands and flip it.
    2. Carefully position the water loop onto three guide pins of the right-side node (when viewed from the tray front); then, gently lower down the water loop and ensure it is seated firmly on the system board.
      Figure 11. Install water loop to the right-side node

  2. Make sure the guide pin near the quick connect slot is properly installed. When properly installed, the guide pin should be inserted through the guide hole and is visible. When installed incorrectly, the guide pin is not seen and the water loop is slightly floating above the tray.
    Figure 12. Checking guide pin installation result

    1. If the guide pin is not properly installed, press down the water loop.
    2. The guide pin should be inserted into the guide hole.
    Figure 13. Fixing incorrectly installed guide pin

  3. Fully loosen two captive thumbscrews located at each end of the water loop carrier.
    Figure 14. Loosening captive thumbscrews

  4. Remove the six T20 screws from the water loop.
    Figure 15. Removing six screws from the water loop

  5. Repeat step 4 to step 5 to install processors to the other side of the water loop.
  6. Check the gap pads on the water loop, if any of them are damaged or detached, replace them with new ones.
    Figure 16. Water loop gap pads locations

Make sure to follow Gap pad replacement guidelines.

  1. Check the gap pads on the VR cold plate installed on the processor board, if any of them are damaged or detached, replace them with new ones.
    Figure 17. VR cold plate gap pads locations

Make sure to follow Gap pad replacement guidelines.

  1. Unfold and install the other side of the water loop as shown.
    Figure 18. Unfolding water loop

  2. Remove the support plate form the water loop.
    Figure 19. Removing the support plate from the water loop.

  3. Make sure the guide pin near the quick connect slot is properly installed. When properly installed, the guide pin should be inserted through the guide hole and is visible. When installed incorrectly, the guide pin is not seen and the water loop is slightly floating above the tray.
    Figure 20. Checking guide pin installation result

    1. If the guide pin is not properly installed, press down the water loop.
    2. The guide pin should be inserted into the guide hole.
    Figure 21. Fixing incorrectly installed guide pin

  4. Install the screw to secure the mixing chamber to the tray through the screw hole on the shipping bracket.
    1. Locate the screw hole on the shipping bracket on the right-side node (when viewed from tray front).
      Figure 22. Location of the mixing chamber screw hole on the shipping bracket

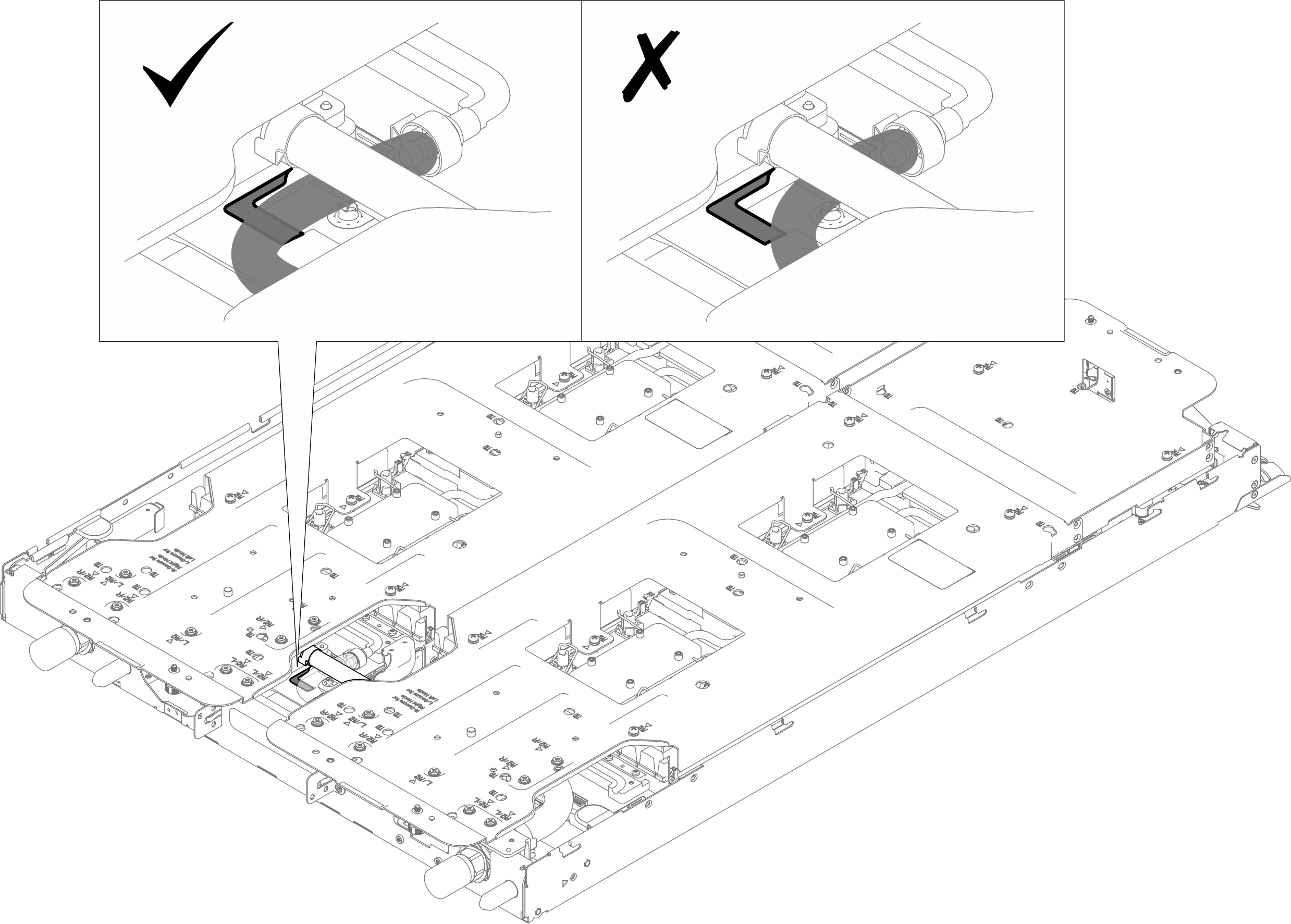
    2. Inspect the space beneath the screw hole, where two water tubes are layered. There is a metal clip on the top tube; the bottom tube should not contact the metal clip. Adjust the bottom tube until the bottom tube is clear off the metal clip.
      Figure 23. Adjust the bottom tube to be clear off the metal clip

      Note
      There is a L-shape slant section on the PDB cold plate that allows more space for the bottom tube. The L-shape slant section is specified in the illustration below. Make sure to keep the bottom tube within the slant section.
      Figure 24. Keeping bottom tube within the slant on PDB cold plate

    3. Keep the bottom tube clear off the metal clip of top tube, and at the same time, install the screw through the screw hole on the shipping bracket to secure the mixing chamber to the tray.
      Note

      For reference, the torque required for the screws to be fully tightened/removed is 5.0+/- 0.5 lbf-in, 0.55+/- 0.05 N-M.

      Figure 25. Installing the screw to secure the mixing chamber

  5. Rotate anti-tilt wire bails (16x anti-tilt wire bails for two nodes) outwards to the locked position.
    Figure 26. Unlocking the anti-tilt wire bails

  6. Loosen water loop carrier screws (28x Phillips #2 screws for two nodes).
    Note

    For reference, the torque required for the screws to be fully tightened/removed is 5.0+/- 0.5 lbf-in, 0.55+/- 0.05 N-M.

    Figure 27. Loosening water loop carrier screws

  7. Carefully lift each water loop carrier up and away from the water loop one at a time.
    Figure 28. Water loop carrier removal

  8. Remove the foam protective packaging from the water loop.
    Figure 29. Removing foam packaging

  9. Fully tighten all Torx T30 captive screws (16x Torx T30 captive screws for two nodes) following the screw sequence label on the shipping bracket, with a torque screwdriver set to the proper torque.
    Note
    • For reference, the torque required for the screws to be fully tightened/removed is 8+/- 0.5 lbf-in, 0.9+/- 0.05 N-m.

    • To prevent damage to components, make sure that you follow the indicated tightening/loosening sequence.

    Figure 30. Screw tightening/loosening sequence on the shipping bracket label

    Figure 31. Tightening Torx T30 captive screws

  10. Install water loop screws (18x Torx T10 screws per node) with a torque screwdriver set to the proper torque.
    Note

    For reference, the torque required for the screws to be fully tightened/removed is 5.0+/- 0.5 lbf-in, 0.55+/- 0.05 N-M.

    Figure 32. Water loop screws installation

  11. Install three Torx T10 screws to secure mixing chambers to the power distribution board cold plate with a torque screwdriver set to the proper torque.
    Note

    For reference, the torque required for the screws to be fully tightened/removed is 5.0+/- 0.5 lbf-in, 0.55+/- 0.05 N-M.

    Figure 33. Mixing chamber screws installation

  12. Follow the screw installation sequence specified in the illustration, and install eight (8x) Torx T10 screws to secure the two quick connects to the tray (four screws for each quick connect).
    Note

    For reference, the torque required for the screws to be fully tightened/removed is 5.0+/- 0.5 lbf-in, 0.55+/- 0.05 N-M.

    Figure 34. Quick connect screw installation

  13. Remove covers from the quick connects.
    Figure 35. Removing quick connect covers

  14. Install two T10 screws to install the VR cover to the water loop. Make sure to install two VR covers to the water loop (one VR cover per node).
    Figure 36. Installing the VR covers

  15. Check the gap pad on the top side of the E3.S middle cold plate, if it is damaged or detached, replace them with new one.
    Figure 37. E3.S middle cold plate top side gap pad location

Make sure to follow Gap pad replacement guidelines.

  1. Replace the single-use gap pad on bottom side of the E3.S middle cold plate a with new one.
    Figure 38. E3.S middle cold plate bottom side single-use gap pad location

Make sure to follow Gap pad replacement guidelines.

  1. Before installing the middle drive cold plate, make sure to position the cold plate to the correct direction. The TOP marking on the cold plates should be toward middle of the tray.
    Figure 39. Middle drive cold plate orientation

  2. Install four PH1 screws to install the middle drive cold plates to the water loop. Make sure to keep the TOP marking facing the rear of tray.
    Note
    • For reference, the torque required for the screws to be fully tightened/removed is 5.0+/- 0.5 lbf-in, 0.55+/- 0.05 N-M.

    • Make sure to install all four middle drive cold plates to the water loop (two cold plates per node).

    Figure 40. Install the middle drive cold plate

  3. Make sure the middle cold plates are installed in correct direction, as shown below, where the TOP marking on the cold plates are towards the middle of the tray.
    Figure 41. Middle drive cold plate position

After you finish
  1. Install the leakage sensor. See Install the leakage sensor.

  2. Install the sideband cable kit. See Install the system management sideband cable kit.

  3. Install the middle E3.S drive cage. See Install an E3.S 1T middle drive cage assembly.

  4. Install the PCIe adapter riser cage. See Install a ConnectX-7 NDR 200 adapter riser assembly or Install a ConnectX-7 NDR 400 adapter riser assembly.
  5. Install the front E3.S drive cage. See Install an E3.S front drive cage assembly.

  6. If the system will be installed with memory modules that requires dual-side cooling, install DIMM cooling bars. See Install a DIMM cooling bar.

  7. Install the cross braces. See Install the cross braces.

  8. Install the memory module, perform one of the following.

  9. Install the DIMM comb. See Install a DIMM comb.

  10. Install the tray cover. See Install the tray cover.

  11. Install the tray into the enclosure. See Install a tray in the enclosure.

  12. Connect all required external cables to the solution.
    Note
    Use extra force to connect QSFP cables to the solution.
  13. Check the power LED on each node to make sure it changes from fast blink to slow blink to indicate all nodes are ready to be powered on.
    Note

    Shared I/O configuration requires specific nodes power-on sequence. When powering on the system, power on Node B first; then, power on Node A. For more information, see PCIe adapter cable routing.