DIMM 냉각 바 설치
다음 정보를 사용하여 DIMM 냉각 바를 설치하십시오. DIMM 냉각 바는 양면 냉각 메모리 모듈에 필요합니다.
이 작업 정보
필수 도구
T10 나사용 드라이버
Storage Gap Pad Kit (SC750 V4) 및 Storage Gap Pad Kit (SC750 V4) - E3.S 앞면 드라이브가 설치된 경우.
CX7 Gap Pad (SC750 V4) - ConnectX-7 NDR 200 어댑터가 설치된 경우.
CX7 Conduction Plate - ConnectX-7 NDR 400 어댑터가 설치된 경우.
절차 보기
- 이 절차의 비디오는 YouTube에서 볼 수 있습니다.
절차
주
시스템이 단면 냉각 메모리 모듈과 함께 설치된 경우. 워터 루프에서 DIMM 덮개를 모두 제거한 다음 크로스바를 제거하십시오(십자형 브레이스 제거 참조).
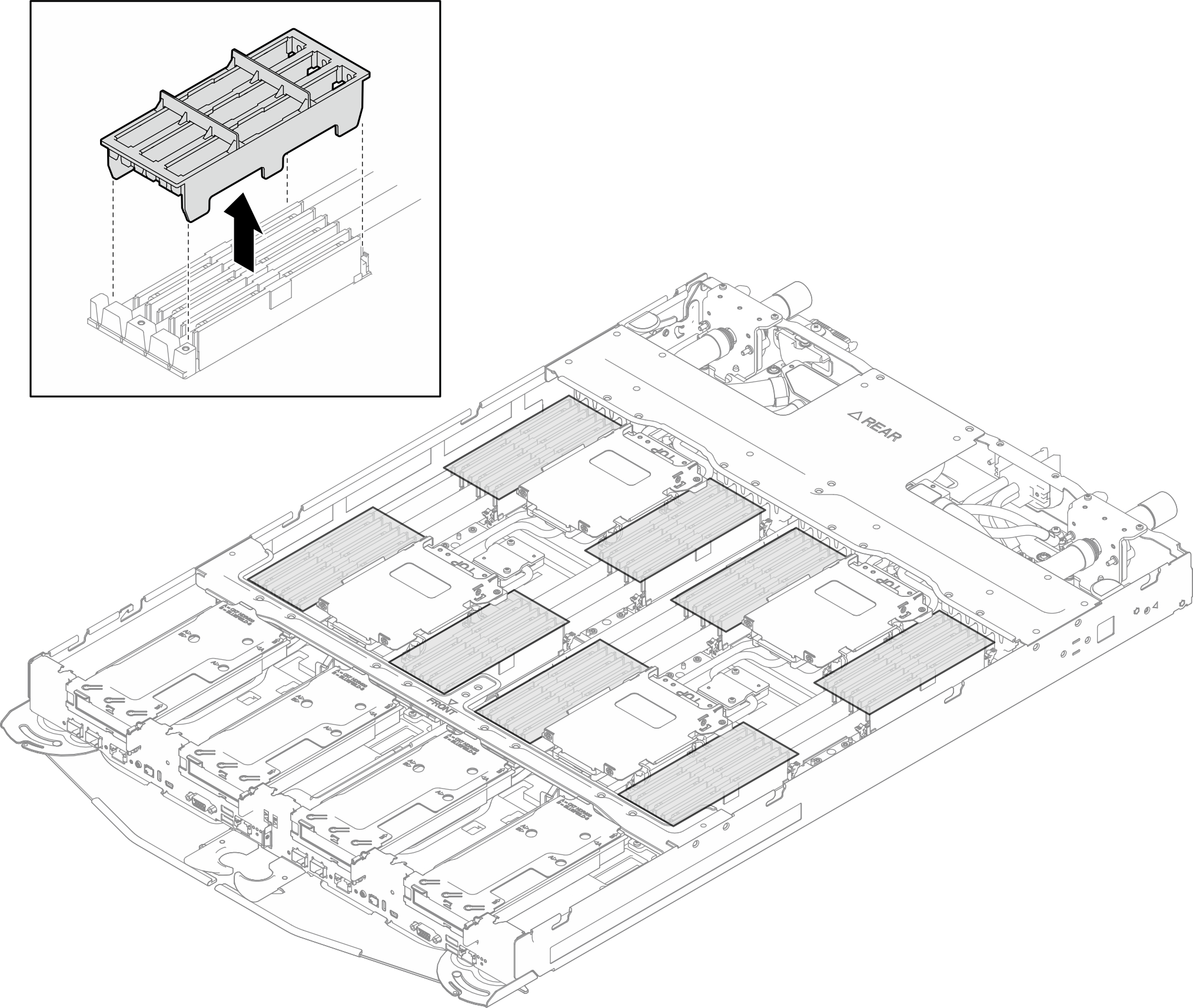
그림 1. DIMM 덮개 제거


DIMM 냉각 바를 설치합니다.
완료한 후
PCIe 어댑터 라이저 케이지를 설치합니다. ConnectX-7 NDR 200 어댑터 라이저 어셈블리 설치 또는 ConnectX-7 NDR 400 어댑터 라이저 어셈블리 설치의 내용을 참조하십시오.
앞면 E3.S 드라이브 케이지를 설치합니다. E3.S 앞면 드라이브 케이지 어셈블리 설치의 내용을 참조하십시오.
십자형 브레이스를 설치하십시오. 십자형 브레이스 설치의 내용을 참조하십시오.
양면 냉각이 필요한 메모리 모듈을 설치하십시오. 메모리 모듈(양면 냉각) 설치의 내용을 참조하십시오.
DIMM 콤을 설치하십시오. DIMM 콤 설치의 내용을 참조하십시오.
트레이 덮개를 설치하십시오. 트레이 덮개 설치의 내용을 참조하십시오.
엔클로저에 트레이를 설치하십시오. 엔클로저에 트레이 설치의 내용을 참조하십시오.
- 필요한 모든 외부 케이블을 솔루션에 연결하십시오.주QSFP 케이블을 솔루션에 추가로 연결하십시오.
각 노드의 전원 LED가 빠르게 깜박이다가 느려지는지 확인하십시오. 이는 모든 노드의 전원을 켤 준비가 되었음을 나타냅니다.
피드백 보내기


