프로세서 설치
이 작업에는 프로세서 설치를 위한 지시 사항이 있습니다. 이 작업에는 Torx T30 드라이버가 필요합니다.
이 작업 정보
PH 1, PH 2, T10 및 T30 나사용 드라이버
Waterloop Service Kit (SC750 V4) (서비스 키트의 워터 루프 캐리어는 재사용할 수 있으므로, 향후 교체가 필요할 때를 대비하여 서버가 운영되는 시설에 보관하는 것이 좋습니다.)
Up VR Gap Pad Kit (SC750 V4)
MID E3.S TOP Gap Pad (SC750 V4) - E3.S 중간 드라이브가 설치된 경우.
MID E3.S BOT Gap Pad (SC750 V4) - E3.S 중간 드라이브가 설치된 경우.
Storage Gap Pad Kit (SC750 V4) - E3.S 앞면 드라이브가 설치된 경우.
Storage Gap Pad Kit (SC750 V4) - E3.S 1T 듀얼 앞면 드라이브 또는 E3. S 2T 싱글 앞면 드라이브가 설치된 경우.
CX7 NDR200 Gap Pad (SC750 V4) - ConnectX-7 NDR 200 어댑터가 설치된 경우.
CX7 Gap Pad (SC750 V4) - ConnectX-7 NDR 400 어댑터가 설치된 경우.
갭 패드 위치 및 지침은 갭 패드 식별 및 위치의 내용을 참조하십시오.
갭 패드를 교체하기 전에 표면을 알코올 청소 패드로 부드럽게 닦으십시오.
변형을 방지하기 위해 갭 패드를 조심스럽게 잡으십시오. 나사 구멍이나 개구부가 갭 패드 재질로 막혀 있지 않은지 확인하십시오.



작업을 수행하려는 해당 DWC 트레이의 전원을 끄십시오.
엔클로저에서 외부 케이블을 모두 분리하십시오.
QSFP 케이블이 솔루션에 연결되어 있다면 추가로 분리하십시오.
각 프로세서 소켓에는 항상 덮개가 있어야 합니다. 프로세서를 제거하거나 설치하는 경우에는 덮개로 빈 프로세서 소켓을 보호하십시오.
프로세서 소켓 또는 프로세서 접촉면을 만지지 마십시오. 프로세서 소켓 접촉면은 매우 약하고 쉽게 손상됩니다. 프로세서 접촉면에 오염 물질(예: 피부의 지방분)이 있으면 연결 장애가 발생할 수 있습니다.
프로세서 또는 워터 루프의 열전도 그리스가 무엇과도 접촉하지 않도록 하십시오. 표면에 접촉하면 열전도 그리스가 손상되어 비효율적입니다. 열전도 그리스는 프로세서 소켓의 전기 커넥터와 같은 구성 요소를 손상시킬 수 있습니다. 지시사항이 표시될 때까지 냉각판에서 그리스 덮개를 제거하지 마십시오.
새 프로세서를 설치하거나 프로세서를 교체하기 전에 시스템 펌웨어를 최신 수준으로 업데이트하십시오. 펌웨어 업데이트를 참조하십시오.
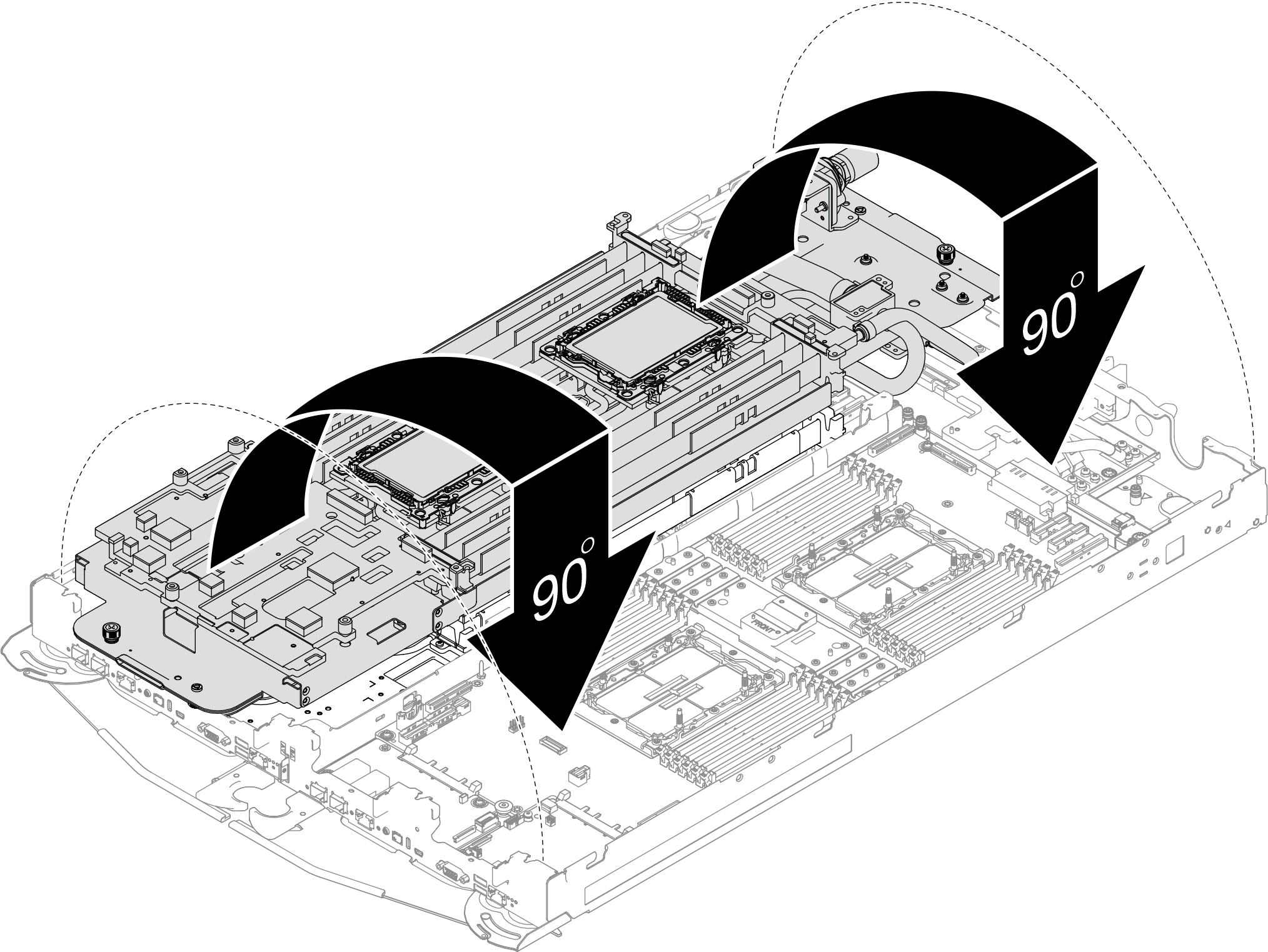
워터 루프의 손상을 방지하려면 워터 루프를 제거, 설치 또는 접을 때 항상 워터 루프 캐리어를 사용하십시오.
시스템에 지원되는 프로세서 목록은 Lenovo ServerProven 웹 사이트의 내용을 참조하십시오. 시스템 보드의 모든 프로세서는 속도, 코어 수 및 주파수가 동일해야 합니다.
시스템에 사용할 수 있는 옵션 장치에는 특정 프로세서를 사용해야 할 수도 있습니다. 자세한 내용은 옵션 장치와 함께 제공되는 설명서를 참조하십시오.

서버의 최신 펌웨어 및 드라이버 업데이트를 확인하려면 ThinkSystem SC750 V4에 대한 드라이버 및 소프트웨어 다운로드 웹 사이트로 이동하십시오.
펌웨어 업데이트 도구에 대한 자세한 정보를 보려면 펌웨어 업데이트로 이동하십시오.
- 이 절차의 비디오는 YouTube에서 볼 수 있습니다.
절차
갭 패드 교체 지침을 따르십시오.
갭 패드 교체 지침을 따르십시오.
갭 패드 교체 지침을 따르십시오.
갭 패드 교체 지침을 따르십시오.
누수 센서를 설치합니다. 누수 센서 설치의 내용을 참조하십시오.
사이드밴드 케이블 키트를 설치합니다. 시스템 관리 사이드밴드 케이블 키트 설치의 내용을 참조하십시오.
중간 E3.S 드라이브 케이지를 설치합니다. E3.S 1T 중간 드라이브 케이지 어셈블리 설치의 내용을 참조하십시오.
- PCIe 어댑터 라이저 케이지를 설치합니다. ConnectX-7 NDR 200 어댑터 라이저 어셈블리 설치 또는 ConnectX-7 NDR 400 어댑터 라이저 어셈블리 설치의 내용을 참조하십시오.
앞면 E3.S 드라이브 케이지를 설치합니다. E3.S 앞면 드라이브 케이지 어셈블리 설치의 내용을 참조하십시오.
시스템을 양면 냉각이 필요한 메모리 모듈과 함께 설치할 경우 DIMM 냉각 막대를 설치하십시오. DIMM 냉각 바 설치의 내용을 참조하십시오.
십자형 브레이스를 설치하십시오. 십자형 브레이스 설치의 내용을 참조하십시오.
메모리 모듈을 설치하고 다음 중 하나를 수행하십시오.
단면 냉각이 필요한 메모리 모듈을 설치하십시오. 메모리 모듈(단면 냉각) 설치의 내용을 참조하십시오. 또는
양면 냉각이 필요한 메모리 모듈을 설치하십시오. 메모리 모듈(양면 냉각) 설치의 내용을 참조하십시오.
DIMM 콤을 설치하십시오. DIMM 콤 설치의 내용을 참조하십시오.
트레이 덮개를 설치하십시오. 트레이 덮개 설치의 내용을 참조하십시오.
엔클로저에 트레이를 설치하십시오. 엔클로저에 트레이 설치의 내용을 참조하십시오.
- 필요한 모든 외부 케이블을 솔루션에 연결하십시오.주QSFP 케이블을 솔루션에 추가로 연결하십시오.
- 각 노드의 전원 LED가 빠르게 깜박이다가 느려지는지 확인하십시오. 이는 모든 노드의 전원을 켤 준비가 되었음을 나타냅니다.주
공유 I/O 구성에는 특정 노드의 전원 켜기 순서가 필요합니다. 시스템 전원을 켤 때는 노드 B를 먼저 켠 다음 노드 A를 켭니다. 자세한 내용은 PCIe 어댑터 케이블 배선을 참조하십시오.




















